Интерьер квартиры-студии до 30 кв. м: два примера
Интерьеры малогабаритных квартир являются, пожалуй, лучшим источником вдохновения и творческих идей для людей, интересующихся дизайном, ведь из них можно почерпнуть основы планирования пространства, которые в последствии позволят реализовывать самые смелые идеи в помещениях любых размеров.
В нашей сегодняшней статье мы разберем интерьеры двух квартир, площадь каждой из них не превышает 30 квадратных метров. Первая выполнена в светлых тонах, вторая в темных, обе, невзирая на свои размеры, выглядят просторными и уютными. Начнем!

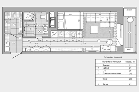
Первая квартира находится в городе Санкт-Петербург и ее площадь составляет 29 квадратных метров. Интерьер разработан с мыслью соединить уют и чувство свободы в одном жилище.

Все пространство грамотно и без лишения чувства целостности разделено на несколько функциональных зон: гостиную, кухню и спальню.

Мягкая мебель с низкой посадкой не тянет на себя одеяло и визуально кажется совсем небольшой.

Спальня занимает центральную часть квартиры и является своего рода фокальной точкой, но одновременно с этим закрыта от лишних глаз.

Рядом с телевизором расположен аккуратный домашний офис. Над столом — несколько небольших полок для книг и других вещей.

Кухню можно назвать образцом минимализма. Она оформлена в белом цвете и оснащена большим количеством встроенных светильников, нивелирующих недостаток естественного освещения.

Вид со входа в квартиру: цвет натурального дерева с левой стороны и белый — с правой.

Дизайн коридора-прихожей оборудован всем необходимым для встречи гостей: скамья для того, чтобы присесть, под ней место для обуви, на потолке и стене вешалки и крючки для одежды.

Ванная, разумеется, тоже не может похвастаться обилием места, но в ней есть все необходимое и даже больше. Внимание сразу же приковывает плитка с красивыми узорами.

Освещение в ванной представлено потолочными и подвесными светильниками. Последние в большей степени играют роль декора.

Для хранения вещей предусмотрен небольшой выдвижной ящик, спрятанный под туалетным столиком, и несколько полок над унитазом.

На фото вы можете увидеть планировку квартиры.

Площадь второй квартиры составляет всего-навсего 24 квадратных метра, но она может похвастаться высокими потолками. Именно на вертикальном размере помещения и делается акцент.

В интерьере можно найти большое количество изделий или вставок из меди, латуни и серебра. Большие зеркала замечательно отлично подчеркивают привлекательность этих металлов.

Вариантов оформления окна в гостиной комнате существует много, подбирать правильный нужно исходя из цветовой гаммы помещения и стиля, в котором это помещение выполнено.

Элегантность этой квартиры никоим образом не нарушается тем, что она оформлена в стиле лофт, скорее наоборот. На фото: лестница играет роль перегородки между кухней и гостиной.

Конечно, в темном интерьере следует по максимуму использовать естественное освещение, дабы помещение не выглядело угрюмым. Светлый пол и большие белые окна отлично контрастируют с черной цветовой гаммой квартиры.

Конструкция лестницы, как видно на фото, имеет упор только с одной стороны, что освобождает много места на кухне. Каждый метр играет большую роль, когда площадь квартиры меньше 30 квадратных метров.

Наверху располагается небольшой офис, с которого, вероятно, открывается замечательный вид на окна в гостиной и на вид из этих окон соответственно.

В непосредственной близости от офиса находится спальня. Рядом с кроватью находится небольшое зеркало, которое немного увеличивает помещение визуально.

Коричневое одеяло и боковой столик из необработанной древесины добавляют интерьеру немного натуральной привлекательности.

В непосредственной близости от офиса и кровати находится небольшая гардеробная, ее границы четко очерчены с помощью штор.

Возвращаемся на первый этаж. В прихожей можно наблюдать, как глянцевая дверь контрастирует с матовой поверхностью мебели.

Как и в остальных частях квартиры, белый деревянный пол подчеркивает естественное освещение, где это необходимо. На фото видно, как он (пол) буквально освещает путь к гостиной.

Компактный дизайн ванной комнаты включает в себя все необходимые функциональные элементы в пределах небольшой площади, здесь даже есть стиральная машинка, скрытая за черной раздвижной дверью.
Читайте также: дизайн интерьера ванной комнаты совмещенной с туалетом

Все минусы темной цветовой гаммы, которые могли бы сделать помещение мрачным, полностью нивелируются белым полом и потолком.

В отличие от всего остального интерьера, в ванной можно наблюдать большое количество обтекаемых форм, которые частично компенсируют полное отсутствие декора. Ставьте лайк, если вам понравился пост!
